
二、構造及工作原理
1 、單機布袋除塵器結構
該設備主要有以下部分組成:
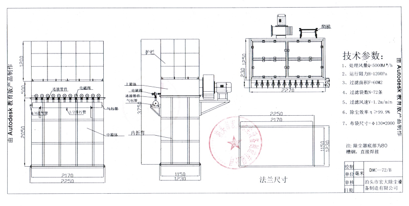
( 1 )箱體:包括袋室、凈氣室、多孔板、 濾袋 、濾袋骨架、檢修門、箱體設計耐壓 5000Pa 。
( 2 )噴吹系統:包括主氣管、噴吹管、脈沖閥、控制儀。
( 3 )進氣排灰部分有兩種形式:一種為標準帶灰斗式,另一種為敞開法蘭式。
2 、工作原理
含塵氣體由進氣口進入灰斗或通過敞開法蘭口進入濾袋室,含塵氣體透過濾袋過濾為凈氣進入凈氣室,再經凈氣室排氣口,由風機排走。粉塵積附再濾袋的外表面,且不斷增加,使袋除塵器的阻力不斷上升,為使設備阻力不_過 1200Pa ,袋式 除塵器 能繼續工作,需定期_濾袋上的粉塵。清灰是由程序控制器定時順序啟動脈沖閥,使氣包內壓縮空氣( 0.5~0.7MPa) ,由噴吹管孔眼噴出(稱一次風)通過文氏管誘導數倍于一次風的周圍空氣(稱二次風)進入濾袋在瞬間急劇膨脹,并伴隨著氣流的反方向作用抖落粉塵,達到清灰的目的。

。
三、選型
1 、型號說明
該單機有 32 、 48 、 64 、 80 、 96 、 112 六種規格,其中每個規格分為兩種安裝形式,以滿足不同場合的使用要求,具體型號說明如下:
2 、選型參數及選型原則
( 1 )布袋除塵器選型的主要技術參數為風量、氣體溫度、含塵濃度與濕度。根據工藝設計的風量、氣體溫度、含塵濃度的數值,按略小于技術性能表中的數值為原則,其相對應的除塵器型號,即為所需要的收塵器型號 .
( 2 )表中的耗氣量為工廠集中供氣時的情況,如單獨使用空壓機時,表中的耗氣量要放大 1.5 倍。
( 3 )壓縮空氣耗量欄中,所提出的耗氣量為該型號設備的耗氣量。
3 、設備外形及基礎(見附圖),我公司還可根據用戶場地情況設計符合用戶要求外形的除塵器。
|
|
DMC-32 |
DMC-48 |
DMC-64 |
DMC-80 |
DMC-96 |
DMC-112 |
||||||||||||||||
|
總過濾面積( m2 ) |
24 |
36 |
48 |
60 |
72 |
84 |
||||||||||||||||
|
過濾風速( m/min ) |
1.04 ~ 1.67 |
1.15 ~ 1.62 |
1.21 ~ 1.74 |
1.25 ~ 1.67 |
1.27 ~ 1.62 |
1.28 ~ 1.68 |
||||||||||||||||
|
處理風量( m3/h ) |
1500 ~ 2400 |
2500 ~ 3500 |
3500 ~ 5000 |
4500 ~ 6000 |
5500 ~ 7000 |
6500 ~ 8500 |
||||||||||||||||
|
濾袋數量(條) |
32 |
48 |
64 |
80 |
96 |
112 |
||||||||||||||||
|
耗氣量( m3/min ) |
0.032 |
0.048 |
0.064 |
0.08 |
0.096 |
0.11 |
||||||||||||||||
|
入口濃度( mg/Nm3 ) |
200 |
|||||||||||||||||||||
|
出口濃度( mg/Nm3 ) |
50 |
|||||||||||||||||||||
|
噴吹壓力( Mpa ) |
0.5 ~ 0.7 |
|||||||||||||||||||||
|
承受負壓( Pa ) |
5000 |
|||||||||||||||||||||
|
設備阻 力( Pa ) |
≤1200 |
|||||||||||||||||||||
|
脈沖閥 |
規格 |
|
||||||||||||||||||||
|
數量(個) |
||||||||||||||||||||||
|
電機型號功率 |
Y90S-2 |
Y90L-2 |
Y100L-2 |
Y132S1-2 |
Y132S1-2 |
Y132S2-2 |
||||||||||||||||
|
( KW ) |
1.5 |
2.2 |
3.0 |
5.5 |
5.5 |
7.5 |
||||||||||||||||
|
|
|||||||||||||||||||||
我廠提供的產品不含除塵器三口(進氣口、排氣口、排灰口)以外的部分。如主排風機、非標管道、保溫材料、空氣壓縮機、輸送設備安裝及電線電纜等,如用戶需要,我廠可代為辦理。
1. 供貨范圍
( 1 )除塵器本體一臺(套)
( 2 )除塵器濾袋一套(含骨架等)
( 3 )電氣控制柜一臺(套)
( 4 )鎖風裝置一臺(套), B 型設備不含其項
( 5 )壓氣系統元件一臺(套)
2. 服務方式
( 1 )負責指導安裝,質量檢測和跟蹤,培訓崗位工人和相關技術人員。 鑄鐵平臺高強耐用
( 2 )負責調試達標。
( 3 )建立長期服務網店,長期提供易損的配備件并隨時到廠為用戶解決相關問題,并提供相關技術咨詢。
( 4 )如我們樣本中的定型產品不能滿足工藝要求時,可根據用戶提出的要求,對收塵器進行特殊設計制造。
3. 提供的資料
( 1 )提供除塵器安裝調試說明書
( 2 )提供除塵器使用說明書
( 3 )提供除塵器電控裝置接線圖
( 4 )提供除塵器電控裝置操作說明書
( 5 )提供發貨清單
( 6 )提供產品合格證書